Leave a Message

Thank you for your message. I will be in touch with you shortly.

Property Description

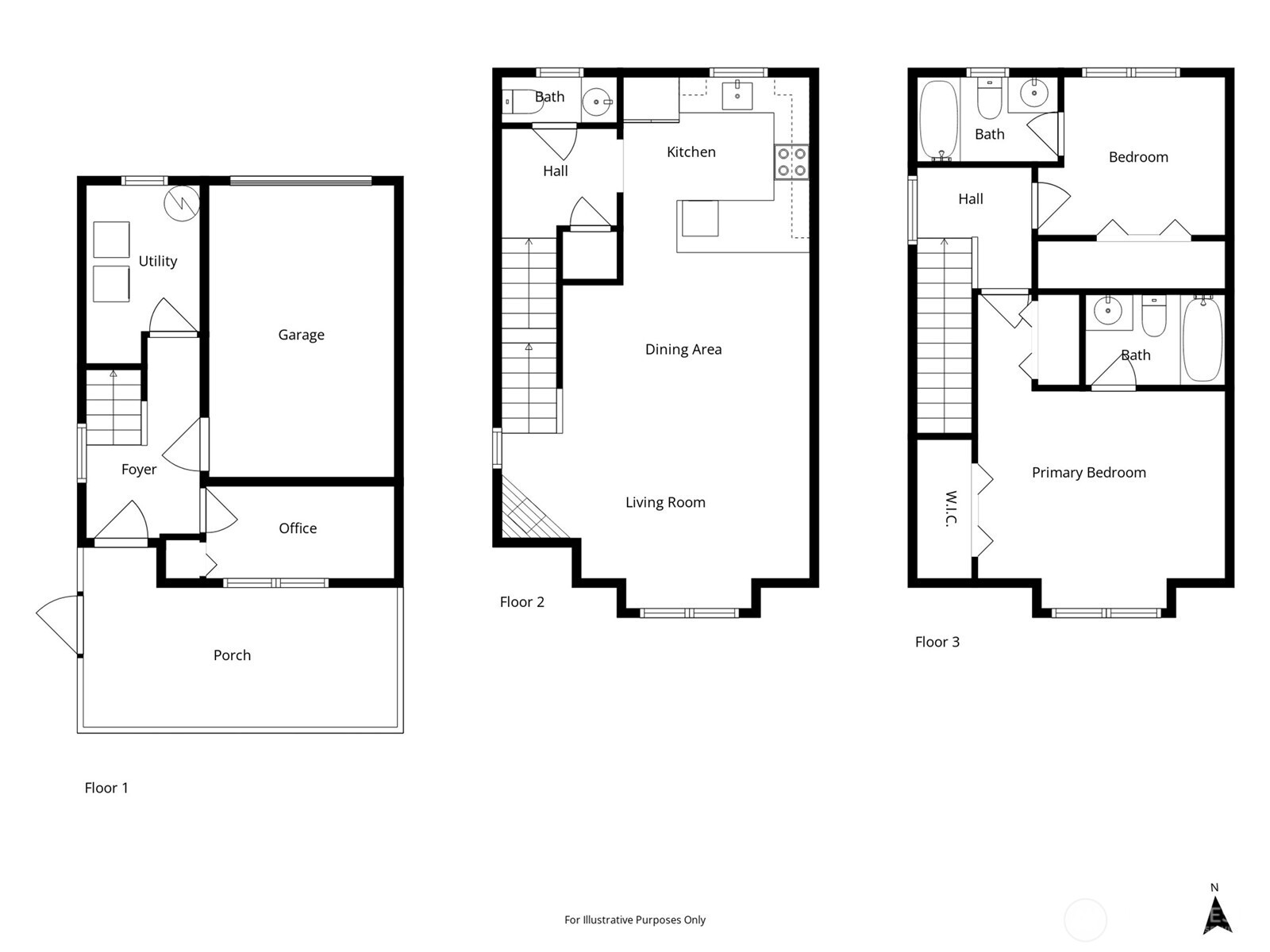
Light-filled townhome in prime North Greenlake location with a versatile, open layout! Lower level offers a private fenced patio, large laundry/storage space, flex room for office or bedroom, and garage. Main floor features a spacious great room with gas fireplace, kitchen with new appliances & quartz counters, breakfast bar, dining area, living room, & half bath. Upstairs you'll find two bedrooms, each with updated ensuite baths. Just two blocks from Licton Springs Park -- a respite from the city w/ trails winding through trickling streams, small ponds, a popular playground, & historic spring. Walk to top-rated schools & local favorites like Lantern Brewing. Pre-inspected and freshly updated--no HOA, no dues!

Overview

Property Status
Sold
Lot Size
1,020 Sq.Ft.
MLS ID
2415219
Property Type
Residential
Year Built
2004

Features & Amenities

Total Area
1,270 Sq.Ft.
View Description
Territorial
Garage Spaces
1.0
Water Source
See Remarks
Roof
Composition
Lot Features
Alley, Corner Lot, Curbs, Paved, Sidewalk
Parking
Attached Garage
Heat Type
Wall Unit(s)
Air Conditioning
Forced Air, None
Fireplace
Gas
Appliances
Dishwasher(s), Disposal, Dryer(s), Microwave(s), Refrigerator(s), Stove(s)/Range(s), Washer(s)
Other Interior Features
Built-In Vacuum, Double Pane/Storm Window, Fireplace, High Tech Cabling, Water Heater
Sewer
Sewer Connected
Substructure
Slab
Security Features
Fully Fenced
Other Exterior Features
Metal/Vinyl, Wood Products
Elementary School
Viewlands
Middle School
Robert Eagle Staff Middle School
High School
Ingraham High
School District
Seattle
Sales Price
$525,000
Real Estate Tax
$5,716/yr

Downloads

1123 N 94th Street Unit: A

Schedule a Tour

I would love to help you see this beautiful home! As a full-service brokerage, I can help you tour. Please submit an offer, and answer questions about the buying process.

Enter a valid email

Thank you

for your interest in 1123 N 94th Street Unit: A, Seattle, WA 98103

back to page
1123 N 94th Street Unit: A
Navigate
1123 N 94th Street Unit: A
explore in 3d

I'm Interested In

1123 N 94th Street Unit: A

or
  • CallJamila Saidi

    License #24004038

    (253) 651-1379
  • Follow Me on Instagram